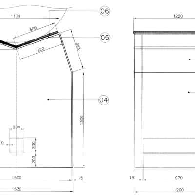
Pipe support saddle

For Sale Category: Cable lay

Location: Rotterdam, Netherlands, Europe

Equipment Quantity : 2

Make an Offer

Pipe support saddles, according to drawing. Contact surface treated with rubber lining. 

Interested?

Contact Details


Loading...